Буссана, квартира в новостройке
Лот: 13840
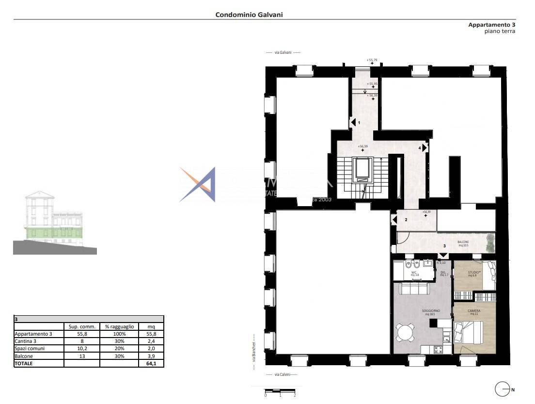
Сан-Ремо, в тихом и характерном районе Бусана, продается двухкомнатная квартира на первом этаже, внутри полностью отремонтированного и изолированного кондоминиума, спроектированного таким образом, чтобы обеспечить максимальный комфорт и безопасность.
Квартира состоит из следующего: вход в большую и светлую гостиную, спальню с двуспальной кроватью, просторный кабинет, где можно поставить односпальную кровать, и ванную комнату с душевой кабиной.
Здание, отреставрированное в соответствии с самыми современными антисейсмическими нормами, представляет собой идеальный выбор для тех, кто ищет безопасный дом с низким энергопотреблением.
В квартире есть частный двор у входа, идеально подходящий для отдыха на свежем воздухе, а также частный подвал, обеспечивающий дополнительное комфортное пространство. Интерьер квартиры предлагает возможность индивидуального оформления полов и покрытий, широкий выбор образцов уже доступен на месте.
Автономный пол с подогревом с водяным тепловым насосом гарантирует оптимальный комфорт в любое время года, а наружные окна из жесткого противоударного ПВХ со стальным армированием и система SCHUCO AS 82 с 7 изоляционными камерами обеспечивают отличную тепло- и звукоизоляцию.
Кондоминиум «Гальвани» также оснащен фотоэлектрическими панелями, которые гарантируют энергетическую независимость помещений общего пользования, включая лифт и помещения общего пользования, снижая затраты на управление и способствуя экологической устойчивости.
Не упустите возможность жить в тихом и хорошо обслуживаемом районе, со всеми современными удобствами и высоким качеством строительства. Свяжитесь с нами для получения дополнительной информации и записи на посещение!
Сан-Ремо, в тихом и характерном районе Бусана, продается двухкомнатная квартира на первом этаже, внутри полностью отремонтированного и изолированного кондоминиума, спроектированного таким образом, чтобы обеспечить максимальный комфорт и безопасность.
Квартира состоит из следующего: вход в большую и светлую гостиную, спальню с двуспальной кроватью, просторный кабинет, где можно поставить односпальную кровать, и ванную комнату с душевой кабиной.
Здание, отреставрированное в соответствии с самыми современными антисейсмическими нормами, представляет собой идеальный выбор для тех, кто ищет безопасный дом с низким энергопотреблением.
В квартире есть частный двор у входа, идеально подходящий для отдыха на свежем воздухе, а также частный подвал, обеспечивающий дополнительное комфортное пространство. Интерьер квартиры предлагает возможность индивидуального оформления полов и покрытий, широкий выбор образцов уже доступен на месте.
Автономный пол с подогревом с водяным тепловым насосом гарантирует оптимальный комфорт в любое время года, а наружные окна из жесткого противоударного ПВХ со стальным армированием и система SCHUCO AS 82 с 7 изоляционными камерами обеспечивают отличную тепло- и звукоизоляцию.
Кондоминиум «Гальвани» также оснащен фотоэлектрическими панелями, которые гарантируют энергетическую независимость помещений общего пользования, включая лифт и помещения общего пользования, снижая затраты на управление и способствуя экологической устойчивости.
Не упустите возможность жить в тихом и хорошо обслуживаемом районе, со всеми современными удобствами и высоким качеством строительства. Свяжитесь с нами для получения дополнительной информации и записи на посещение!
- Ссылка: 13840
- Цена: € 257.000
- обогрев: автономный
- поверхность: кв.м. 55
- номера: 1
- местные жители: 2
- Расстояние от моря: метров 100
- пол: Первый этаж
- Всего этажей: 4
- местонахождение: Bussana
- Спальни: 1
- Площадь (m²): 55
- Ванные: 1
€ 257.000
Aquamarina Real Estate Agency
via Vittorio Emanuele, 30218012 Bordighera (IM)
Телефон: +39 320 79.59.343
Мобильный: +39 328 83.65.167
Электронный адрес: info@aquamarina.email Звонить Организовать просмотр



