Чипресса, вилла с видом на море
Лот: 13784
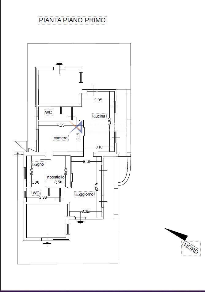
В Чипрессе, в нескольких минутах от пляжей, предлагаем на продажу великолепную виллу с видом на море.
Недавно построенный объект недвижимости расположен на двух уровнях и разделен следующим образом:
вход в светлую столовую, просторную кухню-столовую, главную спальню с гардеробной и собственной ванной комнатой, вторую спальню, еще две ванные комнаты и третью комнату, используемую как кинозал, но при желании переоборудованную в третью спальню благодаря ее внушительным размерам.
Подвал, находящийся в необработанном состоянии, простирается еще на 130 м2.
Недвижимость окружена великолепным участком площадью около 1200 м2 с видом на море, на котором строится бассейн, идеально подходящий для наслаждения моментами отдыха на открытом воздухе, а также два удобных открытых парковочных места.
В Чипрессе, в нескольких минутах от пляжей, предлагаем на продажу великолепную виллу с видом на море.
Недавно построенный объект недвижимости расположен на двух уровнях и разделен следующим образом:
вход в светлую столовую, просторную кухню-столовую, главную спальню с гардеробной и собственной ванной комнатой, вторую спальню, еще две ванные комнаты и третью комнату, используемую как кинозал, но при желании переоборудованную в третью спальню благодаря ее внушительным размерам.
Подвал, находящийся в необработанном состоянии, простирается еще на 130 м2.
Недвижимость окружена великолепным участком площадью около 1200 м2 с видом на море, на котором строится бассейн, идеально подходящий для наслаждения моментами отдыха на открытом воздухе, а также два удобных открытых парковочных места.
- Ссылка: 13784
- Цена: € 1.200.000 сговорчивый
- вид на море
- обогрев: автономный
- поверхность: кв.м. 260
- номера: 3
- местные жители: 6
- Расстояние от моря: метров 500
- местонахождение: Piani
- Спальни: 3
- Площадь (m²): 260
- Ванные: 3
€ 1.200.000
Aquamarina Real Estate Agency
via Vittorio Emanuele, 30218012 Bordighera (IM)
Телефон: +39 320 79.59.343
Мобильный: +39 328 83.65.167
Электронный адрес: info@aquamarina.email Звонить Организовать просмотр
