Империя, квартира в центре
Лот: 14105
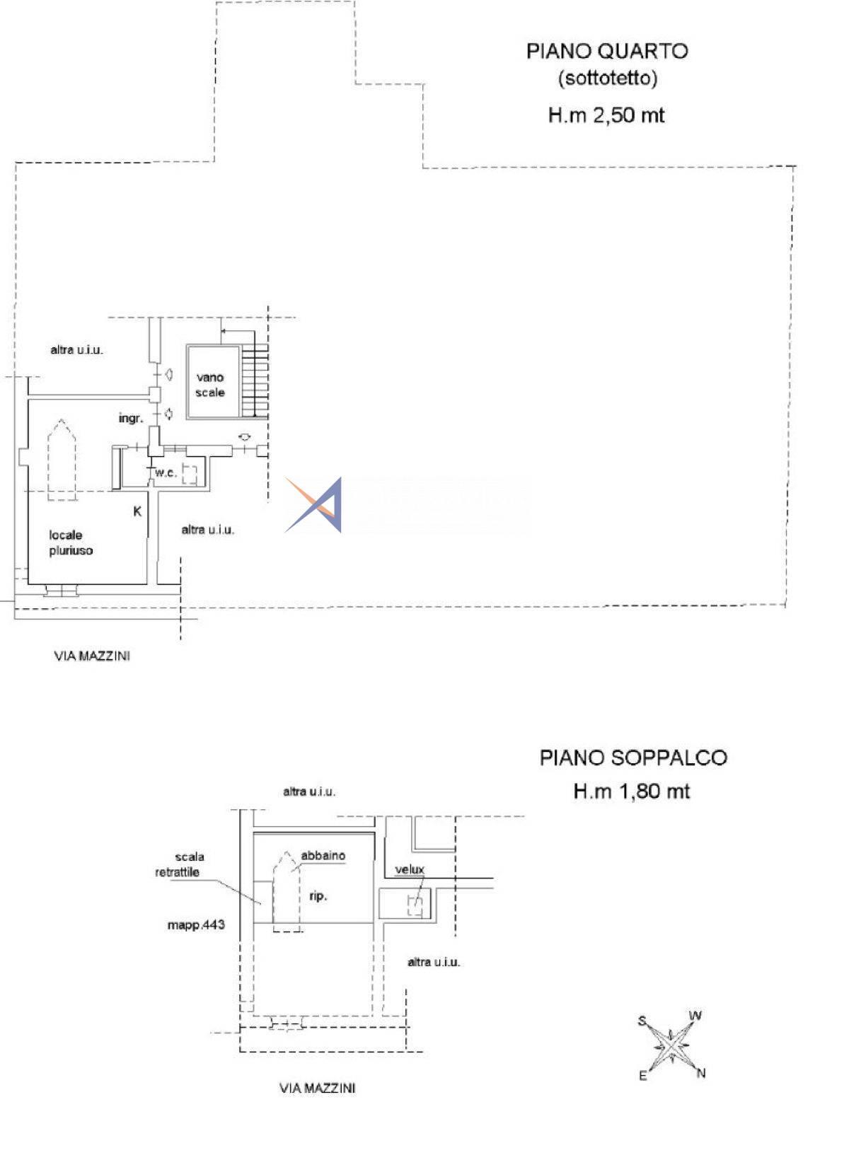
Квартира в центре города, в очаровательной деревне Порто-Маурицио, расположенной в самом центре и особенно удобной для пеших прогулок как до пляжей, так и до магазинов исторического центра. Мы предлагаем к продаже квартиру на четвертом этаже (с лифтом) небольшого кондоминиума с низкими коммунальными платежами. Недвижимость расположена недалеко от известной велосипедной дорожки, проходящей вдоль моря и удобно соединяющей различные районы, а также имеет хорошее транспортное сообщение с основными городскими службами, такими как супермаркеты, школы и общественный транспорт. Квартира выполнена в стиле лофт с высокими потолками и включает в себя прихожую с просторной гостиной, кухню открытой планировки, ванную комнату, антресоль с зоной для сна и подвал, идеально подходящий для тех, кто ищет практичность без ущерба для пространства. Система отопления автономная, с бойлером как для отопления, так и для горячего водоснабжения, что обеспечивает комфорт и отличное энергосбережение. Благодаря своему расположению, низким эксплуатационным расходам и хорошо спланированной планировке, эта недвижимость подходит как для постоянного проживания, так и для отдыха, а также в качестве инвестиции для тех, кто хочет жить всего в нескольких шагах от моря, не жертвуя при этом удобствами.
Квартира в центре города, в очаровательной деревне Порто-Маурицио, расположенной в самом центре и особенно удобной для пеших прогулок как до пляжей, так и до магазинов исторического центра. Мы предлагаем к продаже квартиру на четвертом этаже (с лифтом) небольшого кондоминиума с низкими коммунальными платежами. Недвижимость расположена недалеко от известной велосипедной дорожки, проходящей вдоль моря и удобно соединяющей различные районы, а также имеет хорошее транспортное сообщение с основными городскими службами, такими как супермаркеты, школы и общественный транспорт. Квартира выполнена в стиле лофт с высокими потолками и включает в себя прихожую с просторной гостиной, кухню открытой планировки, ванную комнату, антресоль с зоной для сна и подвал, идеально подходящий для тех, кто ищет практичность без ущерба для пространства. Система отопления автономная, с бойлером как для отопления, так и для горячего водоснабжения, что обеспечивает комфорт и отличное энергосбережение. Благодаря своему расположению, низким эксплуатационным расходам и хорошо спланированной планировке, эта недвижимость подходит как для постоянного проживания, так и для отдыха, а также в качестве инвестиции для тех, кто хочет жить всего в нескольких шагах от моря, не жертвуя при этом удобствами.
- Спальни: 1
- Площадь (m²): 60
- Ванные: 1
€ 87.000
Aquamarina Real Estate Agency
via Vittorio Emanuele, 30218012 Bordighera (IM)
Телефон: +39 320 79.59.343
Мобильный: +39 328 83.65.167
Электронный адрес: info@aquamarina.email Звонить Организовать просмотр

