Коттедж с садом (Kottedzh s sadom)
Лот: 13926
В самом сердце очаровательной деревни Поджо, всего в 3 км от очаровательных пляжей и удобной велосипедно-пешеходной дорожки, мы представляем на продажу отдельную виллу площадью 166 м2, свободную с четырех сторон, с возможностью пешеходного движения, предлагающую уединение и свет в каждой комнате.
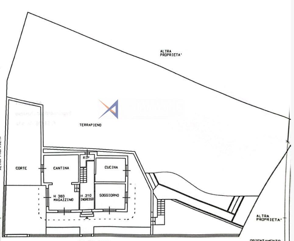
Вход на первом этаже встречает вас просторной гостиной, прекрасно освещенной, и кухней, которая отличается особой функциональностью и воздушностью.
Удобная внутренняя лестница ведет в спальную зону, где расположены четыре просторные спальни, каждая из которых спроектирована так, чтобы обеспечить комфорт и уединение.
Спальная зона дополнена ванной комнатой с окном.
С верхнего этажа вы попадаете на очень просторный балкон, уголок спокойствия, откуда открывается открытый вид на частный сад и очаровательный вид на море — настоящая привилегия.
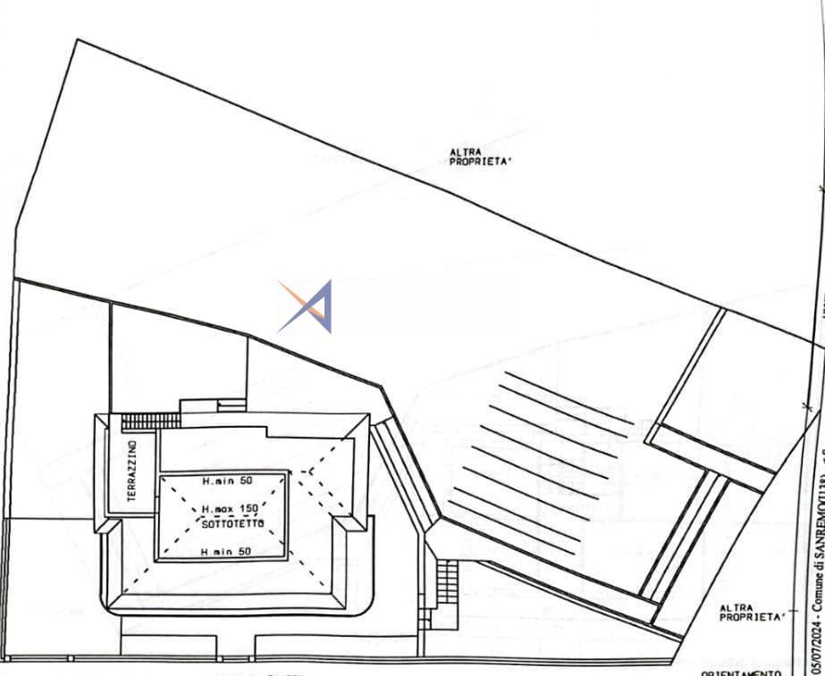
На верхнем уровне, куда можно подняться по внешней лестнице, находится терраса с панорамным и очень впечатляющим видом, где можно насладиться полным спокойствием.
Недвижимость расположена на участке земли площадью 600 м2, на котором растут фруктовые деревья, привносящие нотку природной красоты и спокойствия.
Дополняет недвижимость большой гараж и возможность парковки до четырех автомобилей во дворе, куда легко заехать через ворота, что обеспечивает комфорт и практичность для повседневной жизни.
Резиденция, сочетающая в себе простор и привилегированное расположение, идеально подходит для тех, кто ищет эксклюзивный отдых всего в нескольких шагах от моря.
В самом сердце очаровательной деревни Поджо, всего в 3 км от очаровательных пляжей и удобной велосипедно-пешеходной дорожки, мы представляем на продажу отдельную виллу площадью 166 м2, свободную с четырех сторон, с возможностью пешеходного движения, предлагающую уединение и свет в каждой комнате.
Вход на первом этаже встречает вас просторной гостиной, прекрасно освещенной, и кухней, которая отличается особой функциональностью и воздушностью.
Удобная внутренняя лестница ведет в спальную зону, где расположены четыре просторные спальни, каждая из которых спроектирована так, чтобы обеспечить комфорт и уединение.
Спальная зона дополнена ванной комнатой с окном.
С верхнего этажа вы попадаете на очень просторный балкон, уголок спокойствия, откуда открывается открытый вид на частный сад и очаровательный вид на море — настоящая привилегия.
На верхнем уровне, куда можно подняться по внешней лестнице, находится терраса с панорамным и очень впечатляющим видом, где можно насладиться полным спокойствием.
Недвижимость расположена на участке земли площадью 600 м2, на котором растут фруктовые деревья, привносящие нотку природной красоты и спокойствия.
Дополняет недвижимость большой гараж и возможность парковки до четырех автомобилей во дворе, куда легко заехать через ворота, что обеспечивает комфорт и практичность для повседневной жизни.
Резиденция, сочетающая в себе простор и привилегированное расположение, идеально подходит для тех, кто ищет эксклюзивный отдых всего в нескольких шагах от моря.
- Спальни: 4
- Площадь (m²): 190
- Ванные: 1
€ 390.000
Aquamarina Real Estate Agency
via Vittorio Emanuele, 30218012 Bordighera (IM)
Телефон: +39 320 79.59.343
Мобильный: +39 328 83.65.167
Электронный адрес: info@aquamarina.email Звонить Организовать просмотр
