Пиани Чипресса Четырехкомнатная Квартира с Видом на Море
Лот: 13894
Piani Cipressa, Четырехкомнатная квартира с видом на море на продажу
Представляем вам эксклюзивную квартиру всего в 200 метрах от моря и самой известной велосипедной дорожки в Лигурии, которая соединяет Империю и Оспедалетти, в 800 метрах от центра Сан-Лоренцо-аль-Маре, расположенную в изысканном месте. Эта четырехкомнатная квартира с отдельным входом расположена на двух уровнях:
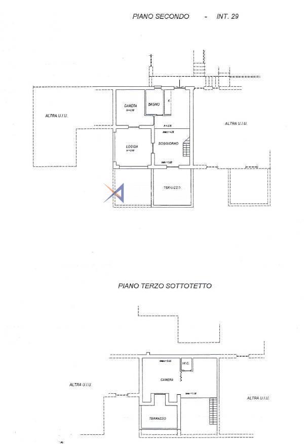
Второй этаж: гостеприимная прихожая, ведущая в светлую гостиную и хорошо оборудованную кухню, спальню, ванную комнату и две террасы. Обе террасы предлагают невероятный вид на море и подходят для моментов отдыха, ужинов, обедов и завтраков прямо на море, одна из террас также оборудована лоджией, чтобы наслаждаться природой в любое время.
На третьем этаже: куда можно подняться по внутренней лестнице, находится еще одна спальня с террасой с видом на море, вторая ванная комната и кабинет.
Кроме того, в квартире есть два частных парковочных места: одно открытое и одно крытое.
Со вкусом отремонтированный в 2018 году, объект недвижимости имеет ценные детали, высококачественную отделку и современные аксессуары, что делает его идеальным для проживания круглый год. Отопление автономное, с тепловыми насосами, продается с мебелью, изготовленной на заказ.
Не упустите возможность пожить в этой прекрасной квартире с видом на море! Свяжитесь с нами для получения дополнительной информации или организации визита.
Piani Cipressa, Четырехкомнатная квартира с видом на море на продажу
Представляем вам эксклюзивную квартиру всего в 200 метрах от моря и самой известной велосипедной дорожки в Лигурии, которая соединяет Империю и Оспедалетти, в 800 метрах от центра Сан-Лоренцо-аль-Маре, расположенную в изысканном месте. Эта четырехкомнатная квартира с отдельным входом расположена на двух уровнях:
Второй этаж: гостеприимная прихожая, ведущая в светлую гостиную и хорошо оборудованную кухню, спальню, ванную комнату и две террасы. Обе террасы предлагают невероятный вид на море и подходят для моментов отдыха, ужинов, обедов и завтраков прямо на море, одна из террас также оборудована лоджией, чтобы наслаждаться природой в любое время.
На третьем этаже: куда можно подняться по внутренней лестнице, находится еще одна спальня с террасой с видом на море, вторая ванная комната и кабинет.
Кроме того, в квартире есть два частных парковочных места: одно открытое и одно крытое.
Со вкусом отремонтированный в 2018 году, объект недвижимости имеет ценные детали, высококачественную отделку и современные аксессуары, что делает его идеальным для проживания круглый год. Отопление автономное, с тепловыми насосами, продается с мебелью, изготовленной на заказ.
Не упустите возможность пожить в этой прекрасной квартире с видом на море! Свяжитесь с нами для получения дополнительной информации или организации визита.
- Ссылка: 13894
- Цена: € 320.000
- вид на море
- обогрев: автономный
- поверхность: кв.м. 79
- номера: 2
- местные жители: 4
- Расстояние от моря: метров 200
- пол: На двух уровнях
- Всего этажей: 3
- Экспозиция: Северо -восток/юго -восток
- местонахождение: Piani
- плата за кондоминиум: 98 €/месяц
- Спальни: 2
- Площадь (m²): 79
- Ванные: 2
Продано
Aquamarina Real Estate Agency
via Vittorio Emanuele, 30218012 Bordighera (IM)
Телефон: +39 320 79.59.343
Мобильный: +39 328 83.65.167
Электронный адрес: info@aquamarina.email Звонить Организовать просмотр



