Санремо, пентхаус с видом на море
Лот: 13800
Сан-Ремо, в нескольких минутах от центра города и пляжей, предлагается на продажу просторный пентхаус с великолепной террасой с видом на море.**
Недвижимость, предлагаемая в оригинальном состоянии, состоит из: вход, коридор, кухня-столовая, гостиная, три спальни и две ванные комнаты.
Недвижимость дополняется большой террасой площадью около 120 квадратных метров, с которой открывается великолепный вид на море, двумя небольшими балконами, подвалом и просторным гаражом.
Центральное отопление с регулируемыми клапанами, возможно переоборудование в автономное.
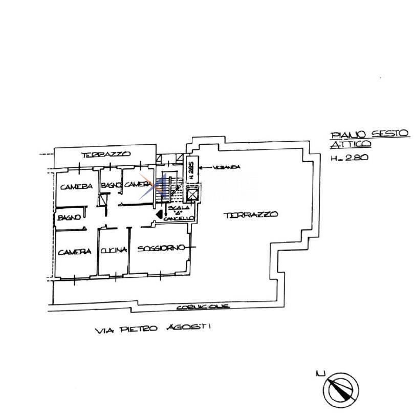
Сан-Ремо, в нескольких минутах от центра города и пляжей, предлагается на продажу просторный пентхаус с великолепной террасой с видом на море.**
Недвижимость, предлагаемая в оригинальном состоянии, состоит из: вход, коридор, кухня-столовая, гостиная, три спальни и две ванные комнаты.
Недвижимость дополняется большой террасой площадью около 120 квадратных метров, с которой открывается великолепный вид на море, двумя небольшими балконами, подвалом и просторным гаражом.
Центральное отопление с регулируемыми клапанами, возможно переоборудование в автономное.
- Ссылка: 13800
- Цена: € 400.000
- вид на море
- обогрев: централизованный
- поверхность: кв.м. 105
- номера: 3
- местные жители: 4
- Расстояние от моря: метров 1000
- пол: Чердак
- Всего этажей: 5
- плата за кондоминиум: 210 €/месяц
- Спальни: 3
- Площадь (m²): 105
- Ванные: 2
€ 400.000
Aquamarina Real Estate Agency
via Vittorio Emanuele, 30218012 Bordighera (IM)
Телефон: +39 320 79.59.343
Мобильный: +39 328 83.65.167
Электронный адрес: info@aquamarina.email Звонить Организовать просмотр



