Буссана, квартира с видом на море
Лот: 13850
Санремо – В тихом и очаровательном районе Буссана продается двухкомнатная квартира, расположенная на первом этаже новопостроенного дома, в современном и спокойном жилом комплексе.
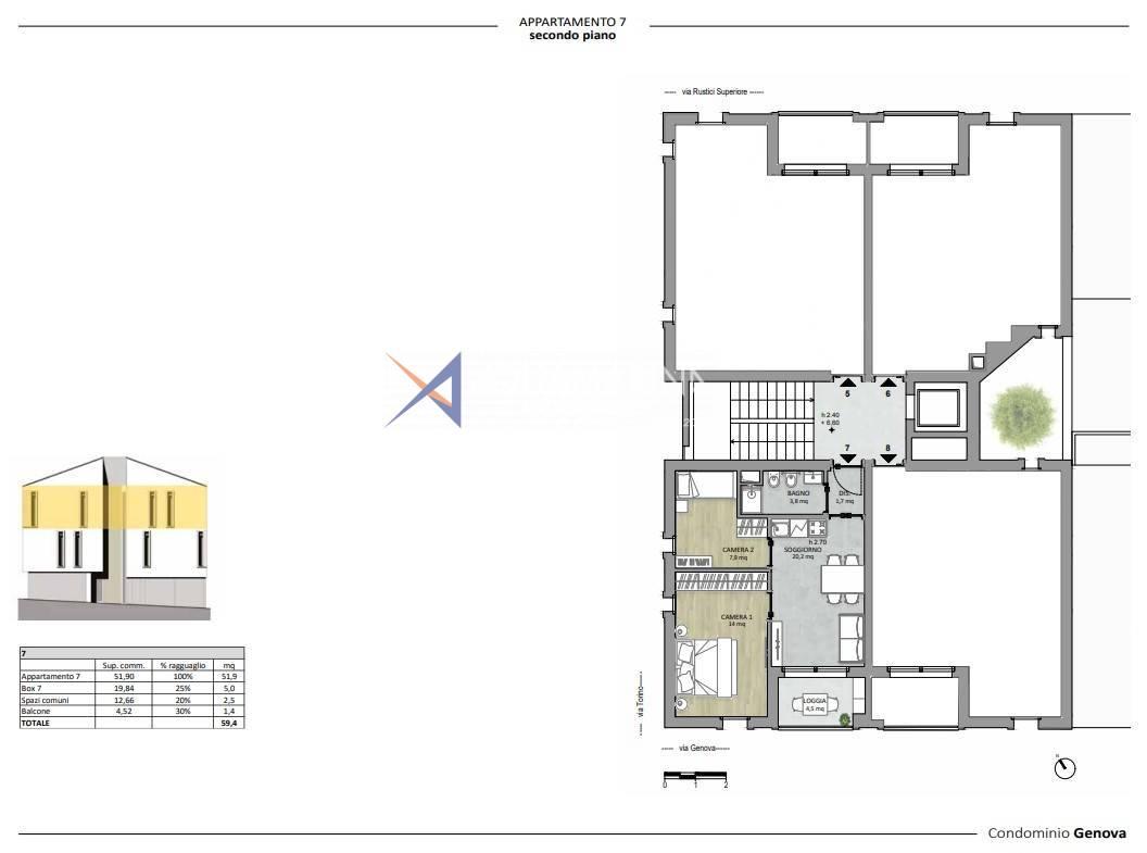
Квартира имеет следующую планировку: светлая гостиная с прямым выходом на лоджию, идеально подходящую для наслаждения прекрасными днями на свежем воздухе, кухня, основная спальня, кабинет и ванная комната с душевой кабиной.
Проект выполнен с учетом требований энергетического класса A+, что обеспечивает идеальное сочетание дизайна, инноваций и безопасности, а конструкция соответствует самым современным антисеизмическим стандартам.
Отопление автономное, напольное, с использованием гидравлического теплового насоса, что гарантирует максимальный комфорт в любое время года.
Внутренние пространства можно настроить под себя: покупатель может выбрать напольные покрытия и отделку из широкого ассортимента образцов, доступных на месте, создавая идеальное жилое пространство.
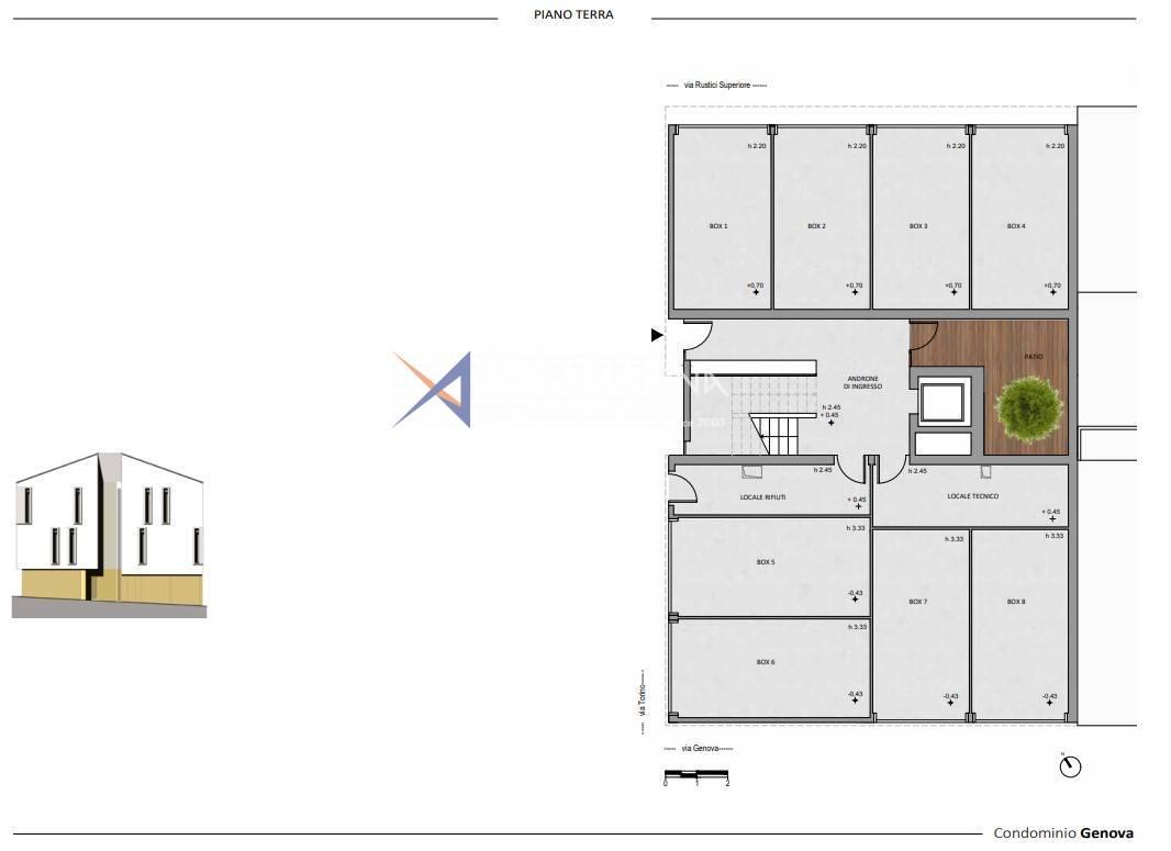
Кроме того, в квартире есть лоджия для отдыха на свежем воздухе, частная терраса с видом на море на верхнем этаже, а также частный гараж, обеспечивающий удобное место для вашего автомобиля.
Здание оснащено ударопрочными рамами из жесткого ПВХ с внутренними стальными усилителями и семикамерной изоляционной системой SCHUCO AS 82, что обеспечивает отличную тепло- и звукоизоляцию.
Кондоминиум «Дженоа» также оснащен фотогальванической системой, обеспечивающей энергетическую независимость общих зон, включая лифт, минимизируя энергопотребление и расходы.
Уникальная возможность жить в современном, безопасном и энергоэффективном доме всего в нескольких шагах от моря и местной инфраструктуры.
Свяжитесь с нами для получения дополнительной информации или чтобы назначить просмотр!
Санремо – В тихом и очаровательном районе Буссана продается двухкомнатная квартира, расположенная на первом этаже новопостроенного дома, в современном и спокойном жилом комплексе.
Квартира имеет следующую планировку: светлая гостиная с прямым выходом на лоджию, идеально подходящую для наслаждения прекрасными днями на свежем воздухе, кухня, основная спальня, кабинет и ванная комната с душевой кабиной.
Проект выполнен с учетом требований энергетического класса A+, что обеспечивает идеальное сочетание дизайна, инноваций и безопасности, а конструкция соответствует самым современным антисеизмическим стандартам.
Отопление автономное, напольное, с использованием гидравлического теплового насоса, что гарантирует максимальный комфорт в любое время года.
Внутренние пространства можно настроить под себя: покупатель может выбрать напольные покрытия и отделку из широкого ассортимента образцов, доступных на месте, создавая идеальное жилое пространство.
Кроме того, в квартире есть лоджия для отдыха на свежем воздухе, частная терраса с видом на море на верхнем этаже, а также частный гараж, обеспечивающий удобное место для вашего автомобиля.
Здание оснащено ударопрочными рамами из жесткого ПВХ с внутренними стальными усилителями и семикамерной изоляционной системой SCHUCO AS 82, что обеспечивает отличную тепло- и звукоизоляцию.
Кондоминиум «Дженоа» также оснащен фотогальванической системой, обеспечивающей энергетическую независимость общих зон, включая лифт, минимизируя энергопотребление и расходы.
Уникальная возможность жить в современном, безопасном и энергоэффективном доме всего в нескольких шагах от моря и местной инфраструктуры.
Свяжитесь с нами для получения дополнительной информации или чтобы назначить просмотр!
- Ссылка: 13850
- Цена: € 363.000
- вид на море
- обогрев: автономный
- поверхность: кв.м. 52
- номера: 1
- местные жители: 2
- Расстояние от моря: метров 150
- пол: 2
- Всего этажей: 2
- местонахождение: Bussana
- Спальни: 1
- Площадь (m²): 52
- Ванные: 1
Продано
Aquamarina Real Estate Agency
via Vittorio Emanuele, 30218012 Bordighera (IM)
Телефон: +39 320 79.59.343
Мобильный: +39 328 83.65.167
Электронный адрес: info@aquamarina.email Звонить Организовать просмотр



