Оспедалетти, квартира на первой линии
Лот: 13981
Сниженная цена
В Оспедалетти, в удобном месте с хорошим транспортным сообщением и центром, предлагаем на продажу большую квартиру с видом на море.
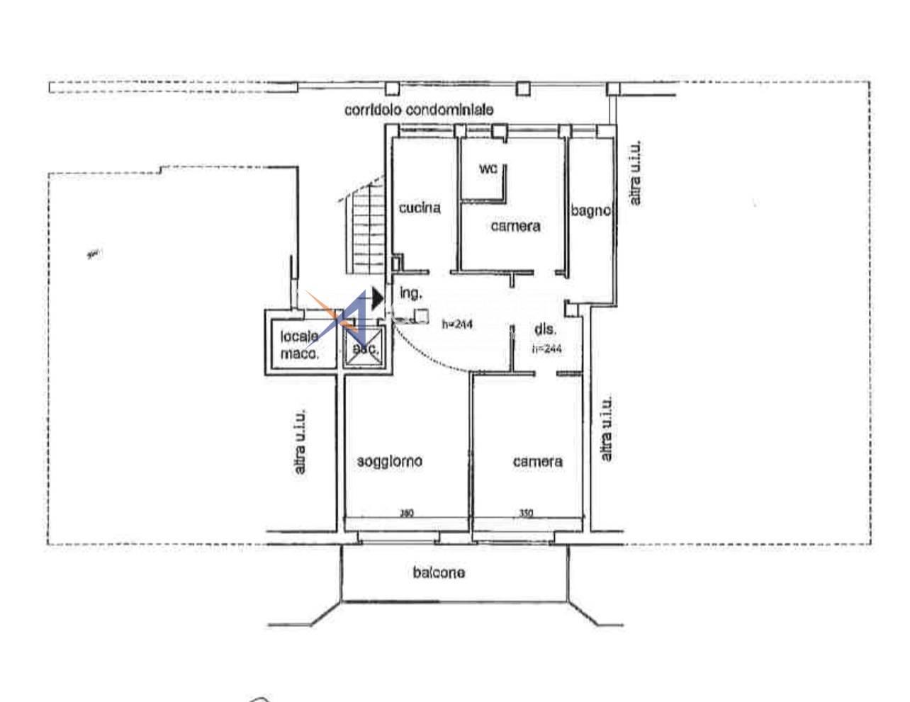
Жилье, очень светлое благодаря выгодному расположению, находится в отличном состоянии, со вкусом обставлено и состоит из: прихожая, большая гостиная с выходом на великолепную террасу с видом на море, кухня-столовая, спальная зона с двумя спальнями с двуспальными кроватями и двумя ванными комнатами.
В квартире также есть прекрасный частный сад, идеально подходящий для отдыха на открытом воздухе и наслаждения великолепным видом на море.
Для дополнительного удобства в этой великолепной недвижимости имеются: кондиционеры во всех комнатах, окна с двойным остеклением, частная парковка. Консьерж.
Прямой доступ к бассейну кондоминиума, к велосипедной дорожке и к пляжам.
В Оспедалетти, в удобном месте с хорошим транспортным сообщением и центром, предлагаем на продажу большую квартиру с видом на море.
Жилье, очень светлое благодаря выгодному расположению, находится в отличном состоянии, со вкусом обставлено и состоит из: прихожая, большая гостиная с выходом на великолепную террасу с видом на море, кухня-столовая, спальная зона с двумя спальнями с двуспальными кроватями и двумя ванными комнатами.
В квартире также есть прекрасный частный сад, идеально подходящий для отдыха на открытом воздухе и наслаждения великолепным видом на море.
Для дополнительного удобства в этой великолепной недвижимости имеются: кондиционеры во всех комнатах, окна с двойным остеклением, частная парковка. Консьерж.
Прямой доступ к бассейну кондоминиума, к велосипедной дорожке и к пляжам.
- Ссылка: 13981
- Цена: € 420.000
- обогрев: счетчик
- поверхность: кв.м. 95
- номера: 2
- местные жители: 3
- Расстояние от моря: метров 50
- пол: Первый этаж
- плата за кондоминиум: 200 €/месяц
- Спальни: 2
- Площадь (m²): 95
- Ванные: 2
€ 420.000
Aquamarina Real Estate Agency
via Vittorio Emanuele, 30218012 Bordighera (IM)
Телефон: +39 320 79.59.343
Мобильный: +39 328 83.65.167
Электронный адрес: info@aquamarina.email Звонить Организовать просмотр



