Санремо, квартира с садом
                            
							
							Лот: 13901
                            	
Сан-Ремо, Виа Дука дельи Абруцци, один из самых тихих и жилых районов города, в удобном месте по отношению к морю и основным услугам, мы предлагаем на продажу изысканную квартиру с большим частным садом.
Расположенная в элегантном здании, окруженном большой огороженной территорией, недвижимость предлагает уединение, безопасность и спокойствие, гарантируя идеальные условия для тех, кто хочет жить в сельской местности, не отказываясь от близости к центру.
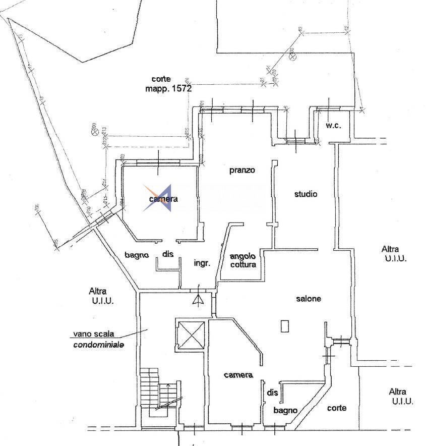
Квартира площадью 180 квадратных метров на первом этаже может похвастаться собственным садом площадью 250 квадратных метров, за которым тщательно ухаживают: беседка, ночное освещение, каменный пол и автоматический полив.
Он состоит из двух сообщающихся жилых помещений, каждое из которых имеет отдельный вход.
Первая квартира площадью 115 м2 включает в себя светлую гостиную открытой планировки со столовой и кухней открытой планировки, две хорошо освещенные спальни с двуспальными кроватями, две ванные комнаты с окнами и эксклюзивным выходом в сад.
Вторая квартира площадью 65 м2 состоит из двух комнат: просторной гостиной с открытой кухней, спальни с двуспальной кроватью, ванной комнаты с окном и собственного дворика.
Недвижимость находится в отличном состоянии, частично меблирована и оборудована автономной системой отопления на метане.
Также имеются два крытых парковочных места в гараже и два подвала.
Идеально подходит в качестве основного места жительства, решения для проживания двух семей или в качестве инвестиции.
Также можно купить только самую большую квартиру по цене 500 000 евро.
Для получения более подробной информации, пожалуйста, свяжитесь с нами.
                                
                                
									
                            
		
		
		
		
		
		
		
		
		
		
		
		
		
		
		
		
		
		
		
		
		
		
		                        
                    Сан-Ремо, Виа Дука дельи Абруцци, один из самых тихих и жилых районов города, в удобном месте по отношению к морю и основным услугам, мы предлагаем на продажу изысканную квартиру с большим частным садом.
Расположенная в элегантном здании, окруженном большой огороженной территорией, недвижимость предлагает уединение, безопасность и спокойствие, гарантируя идеальные условия для тех, кто хочет жить в сельской местности, не отказываясь от близости к центру.
Квартира площадью 180 квадратных метров на первом этаже может похвастаться собственным садом площадью 250 квадратных метров, за которым тщательно ухаживают: беседка, ночное освещение, каменный пол и автоматический полив.
Он состоит из двух сообщающихся жилых помещений, каждое из которых имеет отдельный вход.
Первая квартира площадью 115 м2 включает в себя светлую гостиную открытой планировки со столовой и кухней открытой планировки, две хорошо освещенные спальни с двуспальными кроватями, две ванные комнаты с окнами и эксклюзивным выходом в сад.
Вторая квартира площадью 65 м2 состоит из двух комнат: просторной гостиной с открытой кухней, спальни с двуспальной кроватью, ванной комнаты с окном и собственного дворика.
Недвижимость находится в отличном состоянии, частично меблирована и оборудована автономной системой отопления на метане.
Также имеются два крытых парковочных места в гараже и два подвала.
Идеально подходит в качестве основного места жительства, решения для проживания двух семей или в качестве инвестиции.
Также можно купить только самую большую квартиру по цене 500 000 евро.
Для получения более подробной информации, пожалуйста, свяжитесь с нами.
- Ссылка: 13901
 - Цена: € 750.000
 - обогрев: автономный
 - поверхность: кв.м. 185
 - номера: 3
 
- местные жители: 5
 - Расстояние от моря: метров 500
 - пол: Первый этаж
 - Всего этажей: 3
 - плата за кондоминиум: 160 €/месяц
 
- Спальни: 3
 - Площадь (m²): 185
 - Ванные: 3
 
€ 750.000
																					
                        
                            
                            Aquamarina Real Estate Agency
                            via Vittorio Emanuele, 30218012 Bordighera (IM)
Телефон: +39 320 79.59.343
Мобильный: +39 328 83.65.167
Электронный адрес: info@aquamarina.email Звонить Организовать просмотр
                    
                        
                        
									
									
									
									
									
									
									
									
									
									
									
									
									
									
									
									
									
									
									
									
									
									
									
									
									
									
									
									
									
									
									
									
									
									
									
									
									
									
									
									
									
									
									
									
									
									
									
									
									
									
									
									
									
									
									
									
									
									


      